1 概述 
1.1 重钙简介 
       重钙,是重质碳酸钙的简称,是由天然碳酸盐矿物如方解石、大理石、石灰石磨碎而成。是常用的粉状无机填料,具有白度高、化学纯度高、惰性大、不易化学反应、热稳定性好、在400℃以下不会分解、吸油率低、折光率低、质软、干燥、不含结晶水、硬度低磨耗值小、无毒、无味、无臭、分散性好等优点。广泛用于人造地砖、橡胶、塑料、造纸、涂料、油漆、油墨、电缆、建筑用品、食品、医药、纺织、饲料、牙膏等日用化工行业,作填充剂起到增加产品的体积的作用,降低生产成本。用于橡胶中,可增加橡胶的体积,改善橡胶的加工性,起半补强或补强作用,并可调节橡胶的硬度。可根据需要提供不同粒度要求的普通重钙粉、超细重质碳酸钙、湿法研磨超细碳酸钙、超细表面改性重质碳酸钙。 
1.2 重钙粉磨加工设备的使用现状 
       重钙粉体的加工分为干法和湿法两种。 
       干法常用的设备有雷蒙磨、立式磨、环辊磨、球磨等。雷蒙磨主要加工80-400目的粗粉,早期的雷蒙磨主要以4R、5R机型为主,具有单机能耗高、维修率高、环保性能低等特点,随着重钙等非金属矿行业的规模化发展,雷蒙磨也大有改进,尤其以桂林鸿程HC2000大型雷蒙磨的问世,单机成品250目D97产量高达40t/h,极大改变了业内人士对雷蒙磨的传统观念。立式磨加多次分级后加工的粉体细度可达2500目,早期立式磨及其技术在国内重钙行业极少应用,随着国外及国内台资重钙企业的极力推广应用,立式磨及其技术在内地已经得到广泛应用。环辊磨主要加工600-1500目超细粉,早期的环辊磨以福建龙岩环辊磨为代表,当时的环辊磨存在机型小、产量低等问题,但是其产品适应了重钙产业向超细加工的需求。近年来,随着环辊磨的大量应用,小型化的环辊磨逐步退出历史舞台,国内市场对大型化环辊磨需求的呼声越来越高,2012年,随着桂林鸿程HCH1395大型环辊磨的诞生,并在广西地区得到很好的应用,单机产能相对早期的环辊磨得到很大的提升,1250目产品单机产能可达4.0-4.5t/h,为600-1500目超细粉领域规模化生产提供了有力的保障。球磨机配套分级机技术在重钙行业也有应用,主要应用于生产800-2000目的精细产品领域,此类产品附加值相对较高,但其系统工艺的高能耗、高噪音是诸多设备生产企业有待改进的指标。 
       湿法研磨重钙的研磨设备主要有剥片机、搅拌磨机和砂磨机等,但无论选择哪种设备都必须保证重钙的纯度和白度不受污染,比如筒体内衬和磨盘或搅拌器采用聚氨酯、陶瓷或其他高分子耐磨材料制造,而且在高固含量、高黏度、小研磨介质的条件下磨机能够稳定运行。国内科研院所及企业也纷纷效仿国外超细(湿法)搅拌磨机,据报道长沙某研究院已经取得了一定进步,对于2µm含量达到95%以下的产品可以实现,但是,2µm含量达到95-98%正在研发,而德国诸多公司已经做得比较成功。 
2  HCH1395大型环辊磨及其在重钙微粉加工中的应用 
        HCH1395大型环辊磨是桂林鸿程矿山设备制造有限责任公司自主开发的新一代大型高效重钙微粉磨粉机。它借鉴了传统环辊磨的工作原理,改进了磨辊形状、大小、数量匹配等,在不改变其他参数的情况下,离心碾压力提高近30%,完善了磨辊与磨环接触区,提高了粉碎效能,使得产品产量及细度都有了较大提升,产品的细度范围可达0.008~0.038mm之间,同时,采用整体铸造式底座加减震基础,使得设备的运行可靠性更高、维护保养更便捷,再有采用脉冲收尘器进行产品收集,收集效率高,避免了粉尘外溢。通过和高精度分级机、脉冲收尘器等设备组合在一起组成为一个大型超细粉体加工系统,其具有产量大、单位功率产量高,综合投资费用及运行费用低,环保性能高等特点。可满足国家产业政策和不断扩大的工业化规模生产需求。 
2.1 HCH1395大型环辊磨简介 
(1)HCH1395大型环辊磨的结构 
       HCH1395大型环辊磨主要由整体底座、皮带传动装置、中心轴、转盘、大小磨辊、磨环、润滑装置、减震器、分级机等部件组成,设备结构原理见图1。
  
(2)HCH1395大型环辊磨工作原理 
  电动机通过电机皮带轮经皮带传输到主机皮带轮,主机皮带轮带动中心轴上的转盘作圆周公转,安装在转盘上的磨辊绕中心轴旋转,磨辊与磨辊销之间存在很大的活动间隙,在离心力的作用下磨辊水平向外摆动,从而使磨辊压紧磨环,磨辊同时绕磨辊销自转。物料通过磨辊与磨环之间的间隙,因磨辊的滚碾而达到粉碎和研磨作用,磨辊分为多层布置,物料通过第一层磨辊与磨环间为一次粉碎,接着将通过多层的多次粉碎,因此,物料得到充分的粉碎研磨,得到的产品细度细。(3)HCH1395大型环辊磨主要技术参数 
主要技术参数列于表1。
表1 HCH1395大型环辊磨主要技术参数 
  
	
	| 技术参数
	
	 | 
	HCH1395 | 
	 
	
	| 主机转速(r/min) | 
	175 | 
	 
	
	| 主机功率(kw) | 
	185 | 
	 
	
	| 分级机转速(r/min) | 
	0~1480 | 
	 
	
	| 分级机功率(kw) | 
	75 | 
	 
	
	| 风机转速(r/min) | 
	1480 | 
	 
	
	| 风机功率(kw) | 
	132 | 
	 
	
	| 产品粒度(mm) | 
	0.008~0.038(通筛率97%) | 
	 
	
	| 产量(t/h) | 
	4.0~12.0 | 
	 
	
	| 主机重量(kg) | 
	14580 | 
	 
 
2.2 针对重钙微粉加工的特殊适应性设计 
       ①整体铸造式底座,结构扎实可靠,抗震能力强,环辊磨最大的缺点是主机震动、噪音大,采用整体铸造式底座可避免主机长时间工作震动疲劳而造成的底座或其它构件开裂或损坏。 
       ②主机配备减震弹性基础,有效降低主机工作中产生的震动,同时消除与其他周边设备震动引起的共振现象,相对于传统环辊磨的硬性基础,主机噪音、震动减少30%,极大提高了设备运行的稳定性,延长了磨机的使用寿命,改善了车间工人的作业环境。 
       ③新型的传动装置,主机传动装置采用皮带传动装置,传动稳定、可靠,维修方便快捷,主机研磨本体与主机传动装置采用分体结构,有效避免两者共振现象的发生。 
       ④分级机采用大型强制涡轮分级技术,处理量大,分级效率高,可使成品粒度在0.008~0.038mm之间无级调节,同时,采用气封阻隔技术,分级精度高,分级效果好,无大颗粒污染,确保成品合格率的稳定性。 
       ⑤成品比表面积大:可一次性产制比表面积22400cm2/g(d97=10μm)~30400cm2/g (d97=3μm)的超微细粉。 
       ⑥采用离线清灰脉冲收尘系统,具有过滤面积大、清灰效果强、滤袋使用寿命长等特点,收尘效率高达99.99%,更能适应高粉尘浓度、大水分的收尘工况,而且经过该收尘系统气粉分离后,排出的气体含尘浓度≤30mg/m³达到国家排放标准,使得磨粉系统更加环保。 
       ⑦结合环辊磨的工况,其耐磨件工作时多为挤压、碾磨及冲击,HC1395大型环辊磨的耐磨件材料采用耐磨合金制造,通过实践证明,耐磨件使用寿命较市场上用的小型环辊磨延长30%。 
       ⑧优化设备控制系统,设备控制采用全变频PLC智能操作(多部件联动一键操作)模式,同时大规模生产中的集中远程控制,可以使用户实时或实地时时监控设备运行。 
3. 工艺系统和运行效果 
3.1 工艺流程及安装外形 
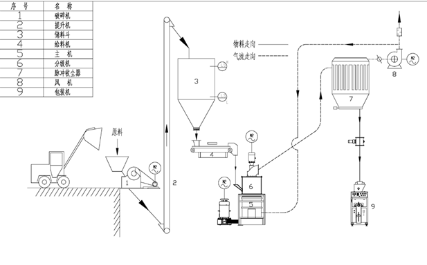
3.1.1 HCH1395大型环辊磨加工重钙微粉工艺系统流程图:如图2
图2  HCH1395大型环辊磨加重钙微粉工艺系统流程图 
3.1.2 HCH1395大型环辊磨系统工艺流程简介 
       待粉磨的物料(原料)通过破碎机破碎成小于10mm的物料,经斗式提升机提升到储料斗,再由皮带给料机定量送入主机腔进行研磨,物料通过磨辊和磨环的相对运动被碾压成粉体,磨碎的粉末由于重力作用落到底盘上,并在鼓风机的气流作用下被吹到主机上方的分级机进行分筛,细度过粗者仍落入主机内重磨,细度合乎规格者随风流入脉冲除尘器,收集后经卸料阀排出即为成品。净化后的气流经脉冲除尘器上方余风管流入鼓风机,风路是循环的,除鼓风机至研磨室为正压外,其余管路内气流均在负压下流动,室内卫生条件较好。物料所含水分在研磨时受热蒸发为气体,管路中各法兰接合处、进料口等处泄入的气体导致循环风路中的风量增加,这些增加的风量经鼓风机和主机之间的三通管道排入大气。 
3.2 HCH1395大型环辊磨粉磨不同细度产品产量及能耗:如下表2
表2    HCH1395大型环辊磨粉磨不同细度产品产量及能耗 
	
	| 物料 | 
	目数(目) | 
	通筛率% | 
	产量(t/h) | 
	电耗(度/吨) | 
	 
	
	  
	 方解石 | 
	600 | 
	D97 | 
	8.5-10 | 
	31.5-36.9 | 
	 
	
	| 800 | 
	D97 | 
	6.5-8.5 | 
	36.9-48.5 | 
	 
	
	| 1250 | 
	D97 | 
	4.2-4.5 | 
	69.5-74.5 | 
	 
	
	| 1500 | 
	D97 | 
	3.5-4.0 | 
	78.4-89.6 | 
	 
 
       备注:以上以加工方解石莫氏硬度为3.0级,邦德功指数为9.25Kwh/t为例,由于各地物料不同,以上数据略有不同。
3.3 运行效果 
       2013年HCH1395大型环辊磨在广西桂林金山化工有限公司进行试用。经检测,单台HCH1395大型环辊磨产量稳定在4.2.-4.5t/h。耐磨件的寿命平均在6000-6500小时。同时与同期其他厂家同类设备的产量进行对比,结果如下表3:
表3   HCH1395大型环辊磨生产实践对比 
	
	| 设备名称 | 
	HCH1395环辊磨 | 
	198型环辊磨 | 
	188型环辊磨 | 
	 
	
	| 产品粒度范围(目) | 
	400-1500目 | 
	400-1500目 | 
	400-1500目 | 
	 
	
	| 产量(t/h)(D97=1250目) | 
	4.2-4.5 | 
	1.8-2.0 | 
	1.6-1.8 | 
	 
	
	| 主机功率(kw) | 
	185 | 
	132 | 
	132 | 
	 
	
	| 系统装机总功率(kw) | 
	392 | 
	217 | 
	217 | 
	 
	
	| 脉冲过滤面积m² | 
	560 | 
	200 | 
	200 | 
	 
	
	| 主机震动(减震基础) | 
	低(有) | 
	高(无) | 
	高(无) | 
	 
	
	| 自动化程度 | 
	高 | 
	中 | 
	中 | 
	 
	
	| 产品电耗(kw.h/t) | 
	69.5-74.5 | 
	86.5-96.5 | 
	96.5-108.5 | 
	 
 
4 结论 
       HCH1395大型环辊磨的运行效果表明:该设备具备产能高、效率高、环保性能好等优点,能满足重钙微粉行业日益大规模工业化生产的需求。 
    (1)生产投资费用低。在保证同样细度的前提下,1台HCH1395大型环辊磨系统产能相当于2台以上市场上目前运用较多的198、188型环辊磨,而设备占地仅为其2/3。 
    (2)生产效率高,节能环保。HCH1395大型环辊磨系统单位产品能降和设备消耗比同类其他设备(立磨、球磨)降低25%-40%,磨粉系统采用全封闭系统,系统在负压下工作,无扬尘,环境清洁。
作者:黄炳腾,卢乐民,范顺利,容北国(桂林鸿程矿山设备制造有限责任公司  广西  桂林 )
►欢迎进入【粉体论坛】 
  
 
 |